AGOE - KOVE, Lomé, Togo (+228) 91 62 35 33 / 97 55 05 70 eecg.contact@gmail.com

Votre Partenaire en Solutions Techniques Intégrées

Excellence et Innovation à votre service

2ECG est une entreprise leader en ingénierie et solutions techniques, offrant une expertise complète à travers 9 domaines d'activité. Notre équipe d'experts qualifiés s'engage à fournir des solutions innovantes et durables pour tous vos projets.

Génie Civil

Électricité & Automatisation

Climatisation

Plomberie & Assainissement

Téléphonie & Informatique

Sécurité Électronique

RENOVATION

Basés à Lomé et intervenant dans tout le Togo, nous mettons notre expertise technique et notre engagement qualité au service de vos projets. Contactez 2ECG pour des solutions sur mesure et un accompagnement professionnel.

En savoir plus

Nos services professionnels

RENOVATION

RENOVATION

rénovation des bâtiments et bureau de travail

Lire plus
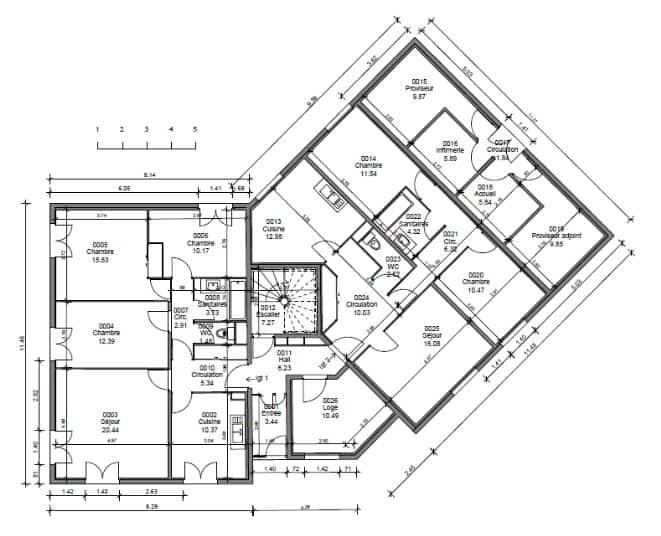
conception des plans

conception des plans

conception des plan des bâtiments; plan d'électricité 

Lire plus
Construction de bâtiments

Construction de bâtiments

construction des maisons et immeubles

Lire plus

Nos projets récents

Réhabilitation des Blocs Météorologiques de Sokodé - Kara - Pagouda

Réhabilitation des Blocs Météorologiques de Sokodé - Kara - Pagouda

réhabilitation des blocs météorologique

Voir détails
Réhabilitation des bâtiments scolaire de Nyamassila

Réhabilitation des bâtiments scolaire de Nyamassila

réhabilitation des bâtiments scolaire

Voir détails
Travaux d'entretien mécanique des pistes

Travaux d'entretien mécanique des pistes

Travaux d'entretien mécanique des pistes

Voir détails

Contactez-nous pour un devis gratuit

Notre adresse

AGOE - KOVE, Lomé, Togo

Notre email

eecg.contact@gmail.com

© 2ECG. Tous droits réservés.